Haus 20

WILLKOMMEN IN HAUS 20 VON 22 EXKLUSIVEN IMMOBILIEN IN DEm LUXURIÖSEN MARY’S HILL-Anwesen IN PEÑONCILLO.

Mary’s Hill liegt nur 350 Meter vom Strand entfernt, zwischen Nerja und Torrox in Axarquia, Costa del Sol.

Diese Haus ist nach Osten und Westen gerichtet und bietet Ihnen den ganzen Tag und Abend Sonne, mit herrlichem Meerblick den Sie von der Terrasse Ihres Hauses aus genießen können. Nicht weit entfernt von den Stränden, Restaurants, Bergen und Golfplätzen können Sie sich Ihre Träume erfüllen und ein Haus an der Costa del Sol erwerben.

Erkunden Sie Haus 20 beginnend mit der herrlichen Aussicht.

DETAILS HAUS 20

3 Schlafzimmer

3 bäder

2 ParkplÄtzE in der Gemeinschaftsparkanlage

gEMEINSCHAFTLICHER INFINITY-POOL

GEMEINSCHAFTLICHEr fitness-raum, SAUNA UND UMKLEIDEMÖGLICHKEITEN

wohnflächE: 113,10 M2

SERVICEbereiche und parkplatz: 14,46 M2

TERassen und gartenfläche: 97,68 M2

dachterasse: 47,10 M2

GESAMTFLÄCHE: 272,34 M2

529 000 €

GEBÄUDE 20 GRUNDRISSE


garagenebene

HIER GELANGEN SIE ZUM EINGANG DES HAUSes, ZU DEN 2 auto-STELLPLÄTZEN IN EINEM GEMEINSCHAFTSPARKPLATZ, ZU EINEM WASCHRAUM UND DIE TREPPE DIE ZUM HAUPTGESCHOSS FÜHRT.

erdgeschoss

DIESE ebene BIETET EINEN EINGANG ZUM HAUS, DER AUCH ZUGANG ZU DEN GEMEINSCHAFTSBEREICHEN DES KOMPLEXES ERLAUBT, DEM gemeinschafts-POOL UND DEM FITNESSRAUM. HIER GENIESSEN SIE DEN OFFENEN GRUNDRISS. KOCHEN SIE SPÄTER IN DER OFFENEN MODERNEN KÜCHE MIT BOSCH-geräten KÖSTLICHE MAHLZEITEN FÜR FAMILIE UND FREUNDE. ENTSPANNEN SIE IM WOHNBEREICH UND GENIESSEN SIE DIE ABENDSONNE VON DER GERÄUMIGEN TERRASSE. DIESE ebebne BIETET AUCH EIN SCHLAFZIMMER UND EIN BADEZIMMER.

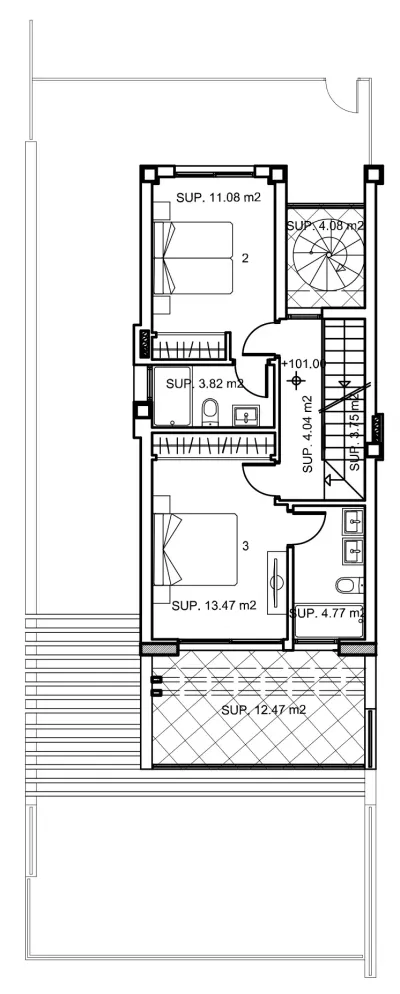
erster stock

WILLKOMMEN IM ERSTEN STOCK, WO SIE DAS HAUPTSCHLAFZIMMER mit angrenzendem bad UND EINEn PRIVATEN BALKON erwartet. hier befindet sich AUCH DAS DRITTE SCHLAFZIMMER MIT angrenzendem bad UND EINEM WEITEREN BALKON. von hier gelangen sie auf die DACHTERRASSE.

dachterrasse

auf der dachterrasse, welche uber 47 m2 gross ist, geniessen sie den meerblick und die wundervollen sonnenuntergaenge.

ERKUNDEN SIE HAUS 3

WIR BIETEN 2 AUSFÜHRUNGSARTEN AN

NATURAL

modern

ALLE IMMOBILIEN WERDEN in EINEM HOHEN STANDARD erstellt. Auf ihre individuelle wünsche können wir sehr gerne eingehen. Dies kann zu zusätzlichen kosten führen.


Kontakt

  • Torrox Costa, Spain
  • +49-178-568-63-83
  • +34-622-834-663
  • info@bycolibri.es

Zum Zeitpunkt der Erstellung und Veröffentlichung dieser Webseite entsprechen alle Informationen der Wahrheit. Die Ausrichtung von 360-Grad-Illustrationen und -Ansichten kann im endgültigen Gebäude abweichen. By Colibri lehnt jede Verantwortung für fehlerhafte Bilder und Informationen ab. Änderungen während der Bauzeit aufgrund geänderter Bauvorschriften sind möglich.

Copyright © By Colibri
website by KEEV